Listed by Susan Rowles of Williams & Stuart Real Estate
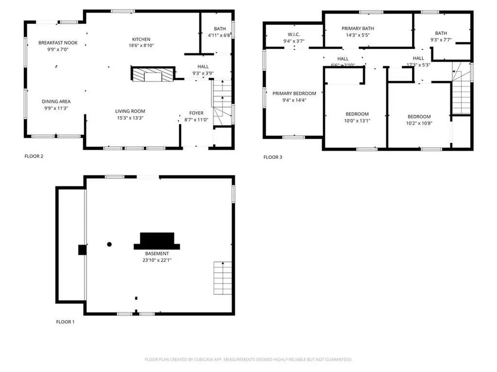
Live the quintessential Edgewood lifestyle in this completely reimagined Colonial. This home blends classic 1920s architecture with the convenience of a brand-new build. Step inside and admire the original character, perfectly complemented by gleaming hardwood floors that flow throughout the main and upper levels. The full renovation provides peace-of-mind upgrades including a new roof, new windows, 200-amp electrical service, and a complete interior transformation. The show-stopping kitchen is a true centerpiece, featuring custom cabinetry, quartz countertops with a built-in dining peninsula, a beverage fridge, and high-end stainless steel appliances. A cozy living room with a wood-burning fireplace and a main-level half bath complete the inviting first floor. Upstairs, the new primary suite addition is a private sanctuary with a walk-in shower and beautiful tile finishes. Two additional bedrooms and an impressive second full bath complete the upper level. Location is everything ~ just a short stroll to popular local cafes and shops, close to Roger Williams Park, Pawtuxet Village, and all major commuting routes.

Listing Tools

Property Details of 126 Columbia Avenue, Edgewood

Property Details

Interior Features

Utilities and Appliances

Other Details

Map Location

 IDX information is provided exclusively for consumers’ personal, non-commercial use and may not be used for any purpose other than to identify prospective properties consumers may be interested in purchasing. Information is deemed reliable but is not guaranteed.  ©  2026 State-Wide Multiple Listing Service. All rights reserved.

Hi there! How can we help you?

Contact us using the form below or give us a call.

Send Us A Message:

I agree to receive marketing and customer service calls and text messages from Teri Degnan Real Estate & Consulting. To opt out, you can reply 'stop' at any time or click the unsubscribe link in the emails. Consent is not a condition of purchase. Msg/data rates may apply. Msg frequency varies. Privacy Policy.

Do not fill in this field:

This site is protected by reCAPTCHA and the Google Privacy Policy and Terms of Service apply.