Listed by Paul ZARRELLA of Williams & Stuart Real Estate
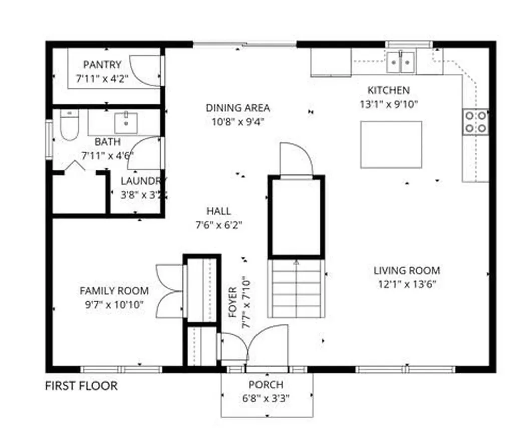
Brand-new coastal construction on a quiet Warwick Neck dead end, just a short walk to the shoreline, walking paths, and open space at Rocky Point State Park! This thoughtfully designed 3-bed, 2.5-bath home offers a bright, modern living space. The first floor features an open kitchen, dining, and living area, plus a separate family/flex room, half bath with laundry, pantry, and welcoming foyer. Upstairs, the primary suite includes a walk-in closet and private bath, with two additional bedrooms and a large full bath. Other highlights include low-maintenance vinyl siding and a wooded 12,000 sq. ft. lot. Located near golf, marinas, restaurants, schools, and shopping, this home pairs the charm of Warwick Neck with the peace of mind only new construction can offer. Major advantages of new construction: enjoy energy-efficient systems, modern insulation, insulated windows, gas heating, central air, and a tankless hot water system, all of which help keep monthly utility costs significantly lower than older homes in the area. No old roofs, outdated wiring, aging mechanicals, or costly surprises. Just move right in and enjoy the peace of mind that new construction affords you.

Listing Tools

Property Details of 76 Medford Street

Property Details

Interior Features

Utilities and Appliances

Other Details

Map Location

 IDX information is provided exclusively for consumers’ personal, non-commercial use and may not be used for any purpose other than to identify prospective properties consumers may be interested in purchasing. Information is deemed reliable but is not guaranteed.  ©  2026 State-Wide Multiple Listing Service. All rights reserved.

Hi there! How can we help you?

Contact us using the form below or give us a call.

Send Us A Message:

I agree to receive marketing and customer service calls and text messages from Teri Degnan Real Estate & Consulting. To opt out, you can reply 'stop' at any time or click the unsubscribe link in the emails. Consent is not a condition of purchase. Msg/data rates may apply. Msg frequency varies. Privacy Policy.

Do not fill in this field:

This site is protected by reCAPTCHA and the Google Privacy Policy and Terms of Service apply.